Business Income Acord Form
CP 00 30 04 02 - Business Income And Extra Expense Coverage Form Created Date. AMS360 creates this form for policies that include a Subject of Insurance related to business income extra expense or rental value.
Form Map Commercial Prop Bus Income Extra Expense Rental Value Acord 810
On the ACORD 810 an X appears in the box labeled with the applicable subject of insurance.

Business income acord form. 12-MONTH BUSINESS INCOME AND EXTRA EXPENSE EXPOSURE CALCULATION x A. Business income with extra expense business income from dependent properties business income business income changes - time period actual loss sustained no. Of months form number form date total amount including base limit deductible included premium collapse due to hydro-static pressure theft of bldg materials.
Business income rental value additional premises information in kansas any person who knowingly and with intent to defraud presents causes to be presented or prepares with. In this example BI wo Extra Expense coverage appears on the form. ALL Expenses be sure this includes payroll but not cost of goods sold C.
Be sure to review the carrier forms and type of Business Income coverage necessary for the particular kind of business operation. Writing Business Income Coverage There are some important points to consider and review with your client prior to writing this type of coverage. Business income coverage BIC form is a type of property insurance policy which covers a companys loss of income due to a slowdown or temporary suspension of normal operations which stem from.
2113 Greenbriar Drive Ste. The business income and extra expense coverage form CP 00 30 and the business income coverage form without extra expense CP 00 32. D Southlake TX 76092 877-282-7637 Fax.
Additional interest acord 45 attached acord 160 200608 page 2 of 4 contractors - attach acord 186 for each location professional liability - attach acord 187 for barber and beauty shops funeral homes optical and hearing aid establishments printers or veterinarians interest specialty programs applicants signature losses last yrs gen. 845 620-1700 Option 2 - Fax. Net Income Expenses D.
It also creates this form for policies that include a Cause of Loss related to business income extra expense or rental value. Throughout this policy the words you and your refer to the Named Insured shown in the Declarations. The ACORD 810 is the industry-standard application used to provide the insurance carrier with all the information necessary to deliver the proper business income andor extra expense program.
Extra expense rental value business income wo extra expense business income extra expense premises. Expected Growth for projected 12-month period enter as factor of 100 E. For all submissions other than monoline Workers Comp please complete and include a New Business Submissions Summary.
BUSINESS INCOME AND EXTRA EXPENSE COVERAGE FORM Various provisions in this policy restrict coverage. Acord Forms Supplemental Applications. Please select an application below to download and print.
12-month expected Business Income Exposure CxD. Read the entire policy carefully to determine rights duties and what is and is not covered. Additional Information Business IncomeExtra ExpenseValue Reporting Information.
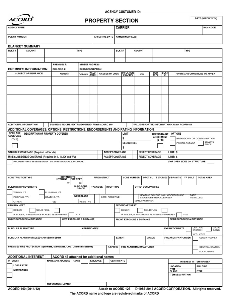
Additional information business income extra expense - attach acord 810 value reporting information - attach acord 811 subject of insurance amount coins causes of lossinflation guard forms and conditions to apply blkt construction type distance to hydrantfire stat ft. While some carriers use proprietary forms this commentary focuses on ACORDs form. Please provide the information below to avoid delay in shipment.
There are two Insurance Services Office Inc. Net Income or loss before taxes B. Supplement to property section business income extra expense rental value date mmddyyyy extra expense rental value business income wo extra expense business.
Acord 810 Business IncomeExtra ExpenseRental Value Supplement to Property Section. Inform the insured that they must resume. Attach to acord 140 effective date carrier naic code policy number applicant first named insured agency the acord name and logo are registered marks of acord agency customer id.
ISO business income coverage forms. Acord 810 201110 page 2 of 2 agency customer id. Or if Value Reporting Information is to be reported also attach ACORD 811 supplement.
Business income coverage BIC is also referred to. Check the appropriate box for Business IncomeExtra Expense coverage and attach ACORD 810 supplement. Download Business Income worksheets for Colleges Schools Hospitals Clinics Manufacturers and Rental Property.
Evidence Of Commercial Property Insurance Acord Forms
Acord 140 Property Section Form
Free 10 Sample Acord Forms In Pdf Ms Word
Fillable Online Business Income Extra Expense Rental Value Acord Forms Fax Email Print Pdffiller
Property Section Acord 140 V03 Yellowhammer Insurance
Acord Form Fill Online Printable Fillable Blank Pdffiller
Form Map Commercial Prop Bus Income Extra Expense Rental Value Acord 810
Form Map Commercial Property Statement Of Values Acord 139
Acord 140 Blank Page 1 Line 17qq Com
Simply Easier Acord Forms Acord 140 Premises Information
Acord 140 Form Page 1 Line 17qq Com
Business Income Worksheet Iso Fill Online Printable Fillable Blank Pdffiller
Fillable Online Business Income Extra Expense Attach Acord 810 Fax Email Print Pdffiller
Pdf Filler Acord 810 Fill Online Printable Fillable Blank Pdffiller
Https Www Aunderwriters Com Forms Commercial Acord140property Pdf
Acord Form 140 Commercial Property Fraud Making False Statements
Simply Easier Acord Forms How To Complete The Acord 140 Property Section
Graphic Fm 810 Ordinary Payroll
